Location
Panamá, PA
Year
2026
Status
Competition
Program
Museum
Associates
–
Team
Lucas Astorga Quintana, Santiago del Toral, Camila Mazzitelli, Camila Moran, Alice Ramos, Imagenes: VABA
027 / Mac
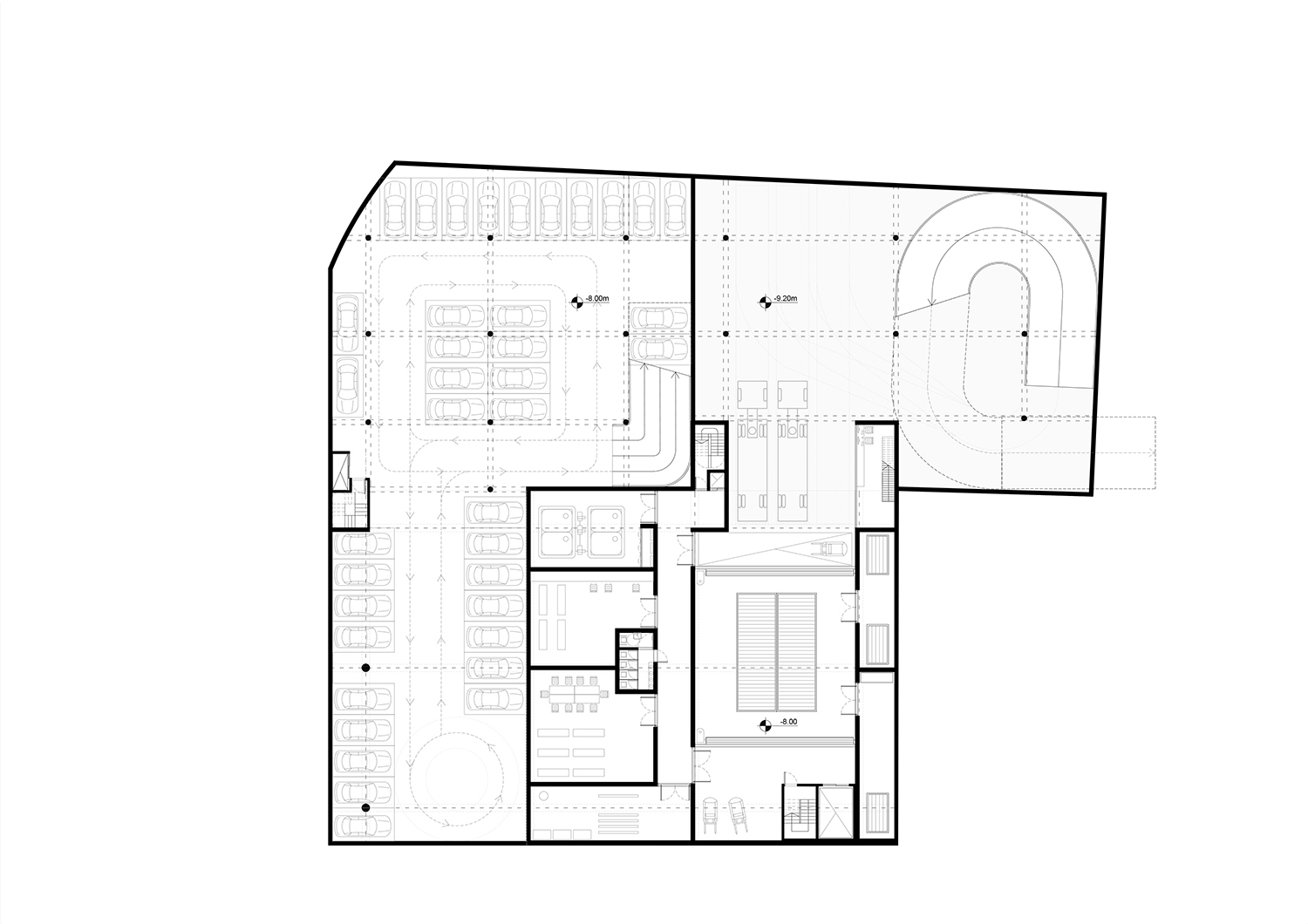
The museum is located in a still undefined part of the city, a place that for years has been more expectation than form. The project does not aim to fill a void, but to help shape it. What it ultimately proposes is another kind of void: a plaza that activates this part of the city, between a fishing neighborhood and a district of towers. There is no forecourt; here, the museum begins in the city. This ground works as a reserve of public space, fairly protected from future pressure.
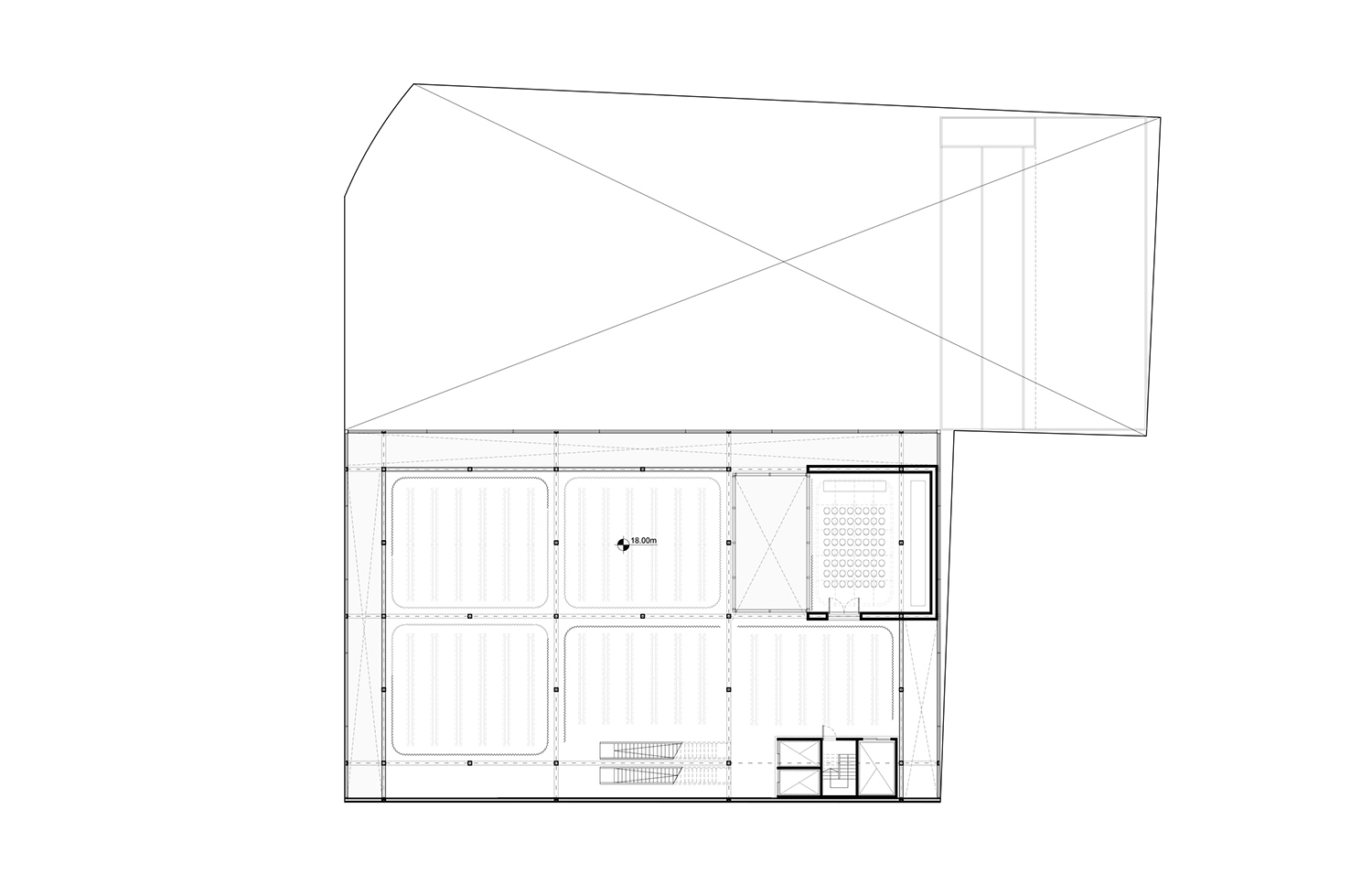
Access reverses the usual logic: you go down to enter. The first basement concentrates the entrance, with the lobby, public spaces, and administrative areas. The second basement brings together the technical areas, archives, and storage. The exhibition spaces are above and work as two distinct but complementary situations. The first is more experimental, with generous height and an unobstructed plan; the project room reinforces this idea and can function as a laboratory or testing space. The upper gallery, in contrast, is more controlled, with more defined proportions and more stable environmental conditions.
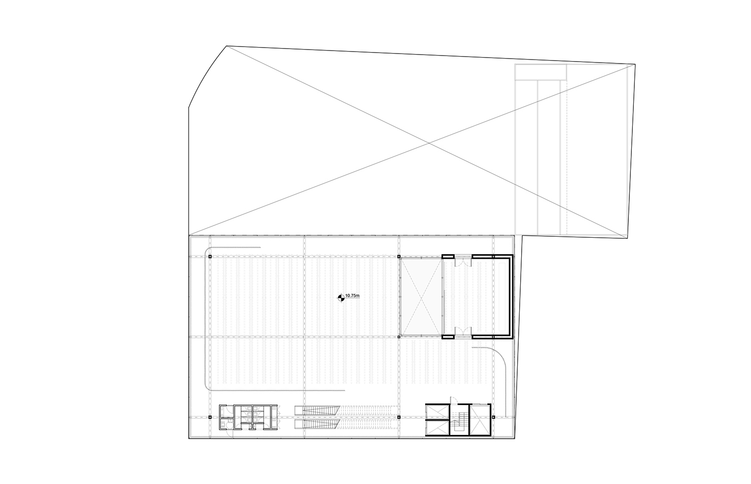
At ground level, the building almost disappears. Under the large roof, the shadow forms a third, more open and indeterminate space. Circulation is left exposed, with stairs and elevators moving through the volume and making the different paths visible. The workshops appear as intermediate spaces, connecting the plaza with the galleries.
From the second basement up to the first level, reinforced concrete forms a continuous, heavy base. As the building rises, the logic shifts: metal columns appear, lighter and more suited to the galleries. These columns take the loads coming down from the beam system of the upper hall, beams that not only solve the structural demands but also define the space. In this way, the ground floor is left free, the first gallery expands without obstacles, and the upper gallery becomes a habitable structure. There are no separate decisions; structure, space, and program operate as a single gesture.